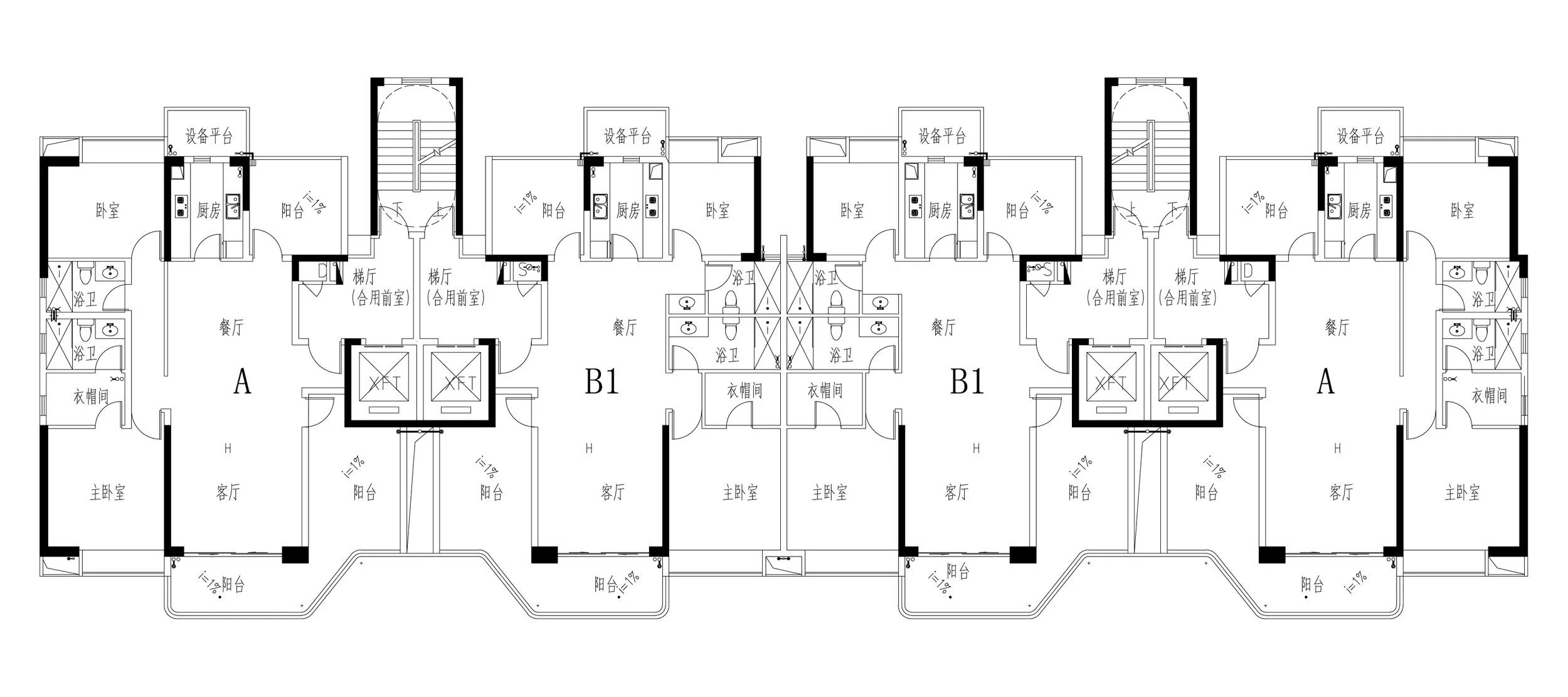
Shantou Housing
Scope: Arch DD | LD
Status: Shantou | In Progress 2022
Type | SQM: Housing | 80,000 sqm
Scope: Arch DD | LD
Status: Shantou | In Progress 2022
Type | SQM: Housing | 80,000 sqm